01.08.2025 12:55
Tuotantotila ja teollisuushalli, Liiketila
Nyt olisi mahdollista vuokrata toimitilaa erittäin hyvältä asiakasvirta paikalta! Esimerkiksi Kärkkäinen Oy alkaa rakentamaan tilojaan suoraan vastapäätä tien toiselle puolelle Vuoden 2026 Keväällä ja lisäksi toimitiloille on moottoritie näkyvyys.
| Sijainti | Kiertorata 12, 90440 Kempele |
| Tilan tyyppi | Tuotantotila ja teollisuushalliLiiketila |
| Myydään | Ei |
| Vuokrataan | Kyllä |
| Myydään sijoituskohteena | Ei |
| Uudiskohde | Kyllä |
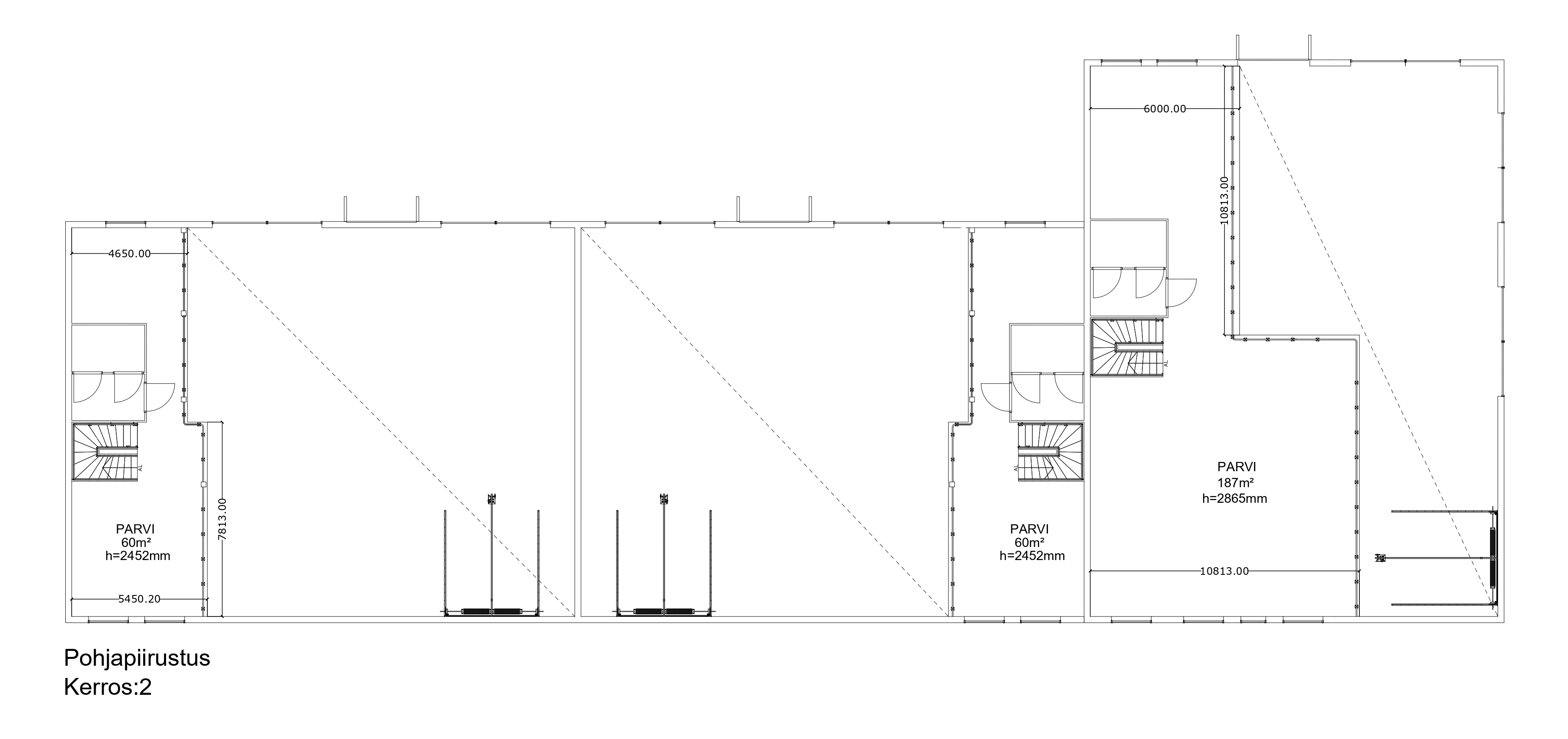
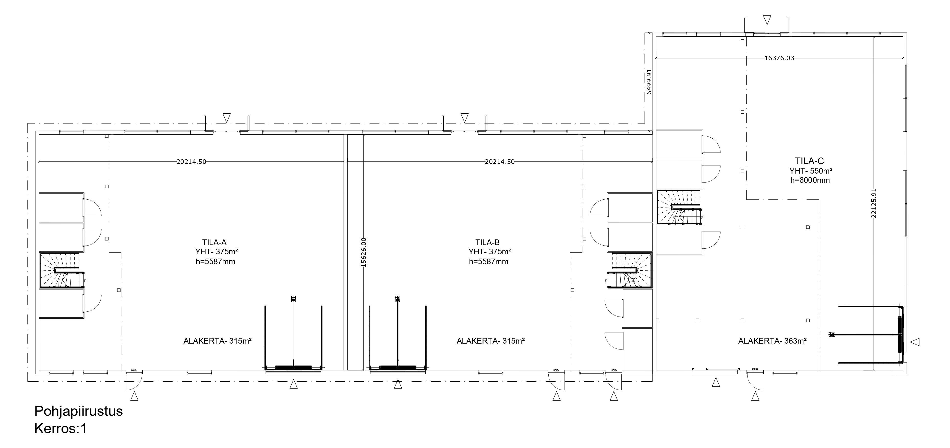
| Tilan vapaa korkeus | 6 m |
| Pinta-ala yhteensä | 1 300 ㎡ |
| Pienin vuokrattava alue | 375 ㎡ |
| Tila 1. kuvaus | Toimitila A Vuokra 6900€/kk + kulut (Kaikki tilat mahdollista yhdistää yhdeksi tilaksi 1300m2 jolloin vuokra 16300€/kk + kulut) |
| Tila 1. koko m² | 550 ㎡ |
| Tila 2. kuvaus | Toimitila B Vuokra 4700€/kk + kulut (A ja B tila mahdollista yhdistää yhdeksi tilaksi 925m2 jolloin vuokra 11600€/kk + kulut) |
| Tila 2. koko m² | 375 ㎡ |
| Tila 3. kuvaus | Toimitila C Vuokra 4700€/kk + kulut (B ja C tila mahdollista yhdistää yhdeksi tilaksi 750m2 jolloin vuokra 9400€/kk + kulut) |
| Tila 3. koko m² | 375 ㎡ |
| Vuokrahinta (㎡) | 12,55 €/㎡ |
| Vuokrasopimuksen tyyppi | Määräaikainen vuokrasopimus |
| Vuokraan sisältyy | Autopaikkoja |
| Piha-alue | Piha-alueet asfaltoidut. |
| Vuokra-ehdot |
1. Määräaikainen 10 Vuoden vuokrasopimus. 2. Vuokralainen vastaa kaikista kuluista (sähkö, vesi, lämmitys, jätehuolto, ym.) |
| Rakennusvuosi | 2026 |
| Ilmanvaihto | Koneellinen |
| Muut varustelut | Pysäköintipaikkoja henkilöstölleAsiakaspysäköintipaikkojaIlmanvaihto lämmön talteenotollaKeittiöNosto-ovetVoimavirtaÖljykaivo |
| Kerrokset | Katutaso |
| Pohjakuvat |
Pohjakuva 1 Pohjakuva 2 Pohjakuva 3 |
| Esite | Esite |
| Yhteystiedot |
OVK Toimitilat Oy Mika Leinonen info@ovktoimitilat.fi 0505212658 https://www.ovktoimitilat.fi Kotisivut |